販売中
補助金対応
New
関市下有知②号棟【ZEH仕様】
隠し扉のある、ママの嬉しい家事動線GOODな家。
物件概要
| 物件名 | 関市下有知②号棟【ZEH仕様】 | 販売価格 |
2,830万円(税込)
販売中 |
|---|---|---|---|
| 所在地 | 関市下有知字寺下 | 区画数 | 3区画 |
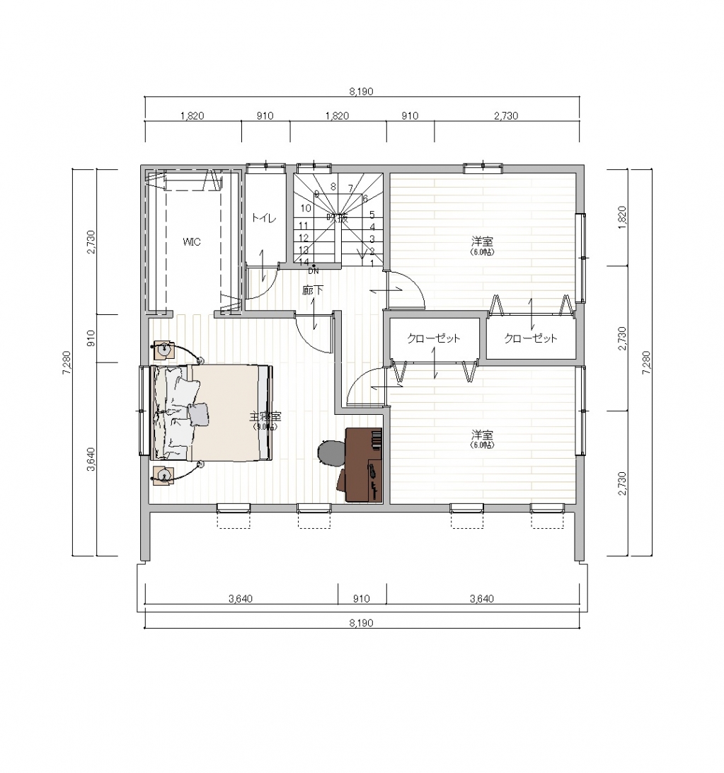
| 間取り | 4LDK+S | 延床面積 | 115.95㎡(35.07坪) |
| 土地面積 | 189.07㎡(57.19坪) | 建ぺい率・容積率 | 60%・200% |
| 竣工時期・入居可能日 | 2026年7月頃完成予定 | 構造・階数 | 木造軸組みパネル工法・2階建て |
| 用途 | 居宅 | 地目 | 宅地 |
| 用途地域 | - | 都市計画区域 | 非線引区域 |
| 建築条件 | なし | 開発許可 | なし |
| 取引態様 | 売主 | 建築確認番号 | - |
| 設備 | オール電化、上下水道引込済み | ||
| 備考 | - | ||
周辺環境・地図
| 交通 | 長良川鉄道 下有知駅 約1.2Km |
|---|---|
| 周辺環境 |
学区・学校・保育施設 下有知小学校 約400m下有知中学校 約940m |
コメント
小学校や中学校も近く、美濃インターまでもスグな好立地に分譲住宅が登場しました。
一番の見どころは家事動線。マルチスペースをどのように利用するかはご家庭によりで使いやすい間取りです。
ママの「欲しかった」の声を詰め込んだ、まるで注文住宅のような1棟です。














